

















Valle Grande
Ubicación:Vicente López, Argentina.
Año:2015
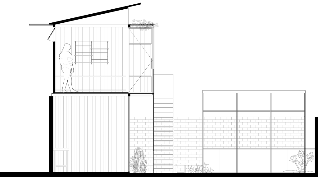
Fue el primer taller de Oficios Asociados, un espacio que nació de la necesidad de expandir su lugar de trabajo y que reflejaba su forma de trabajar y diseñar.Ubicado en un terreno con un galón preexistente, el proyecto integraba una nueva oficina en planta lata, con una estructura de pórticos metálicos que permitia una apertura total hacia el patio y la arboleda.Más que en un lugar de trabajo, fue un punto de encuentro, creación y aprendizaje.
Fotografia: Gustavo Sosa Pinilla
Publicación