Saltar al contenido
SOMOS
PROYECTOS
CONTACTO
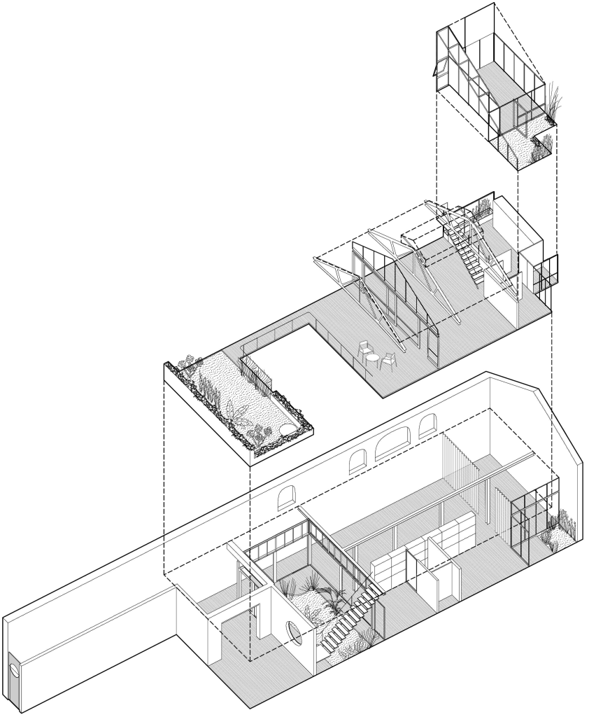
Cabrera
Ubicación: Palermo, Buenos Aires.
Año: 2022
NESS
CASA ALEGRIA
VALLE GRANDE
.VILLA VENTANA
LA TERENCIA
STUD
CASA CABRERA
HUMBOLDT
RAVIGNANI
CASA CAMPANA